Palazzina in vendita

Monza, Via Tommaso Campanella - Monza Est
€ 900.000
1190 Mq 1190 Mq

Palazzina in vendita

Monza, Via Tommaso Campanella - Monza Est

Descrizione annuncio

Vendita Quota Compendio Immobiliare – Zona Centrale Monza (Regina Pacis)

Occasione di investimento in una delle zone più strategiche di Monza, a pochi passi dalla stazione FS e con collegamenti diretti e rapidi per Milano.

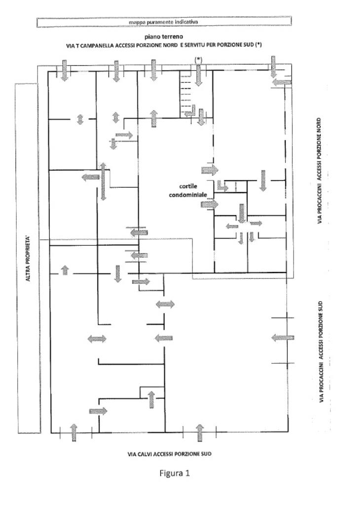
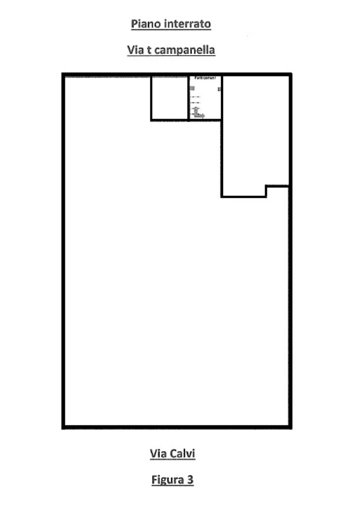
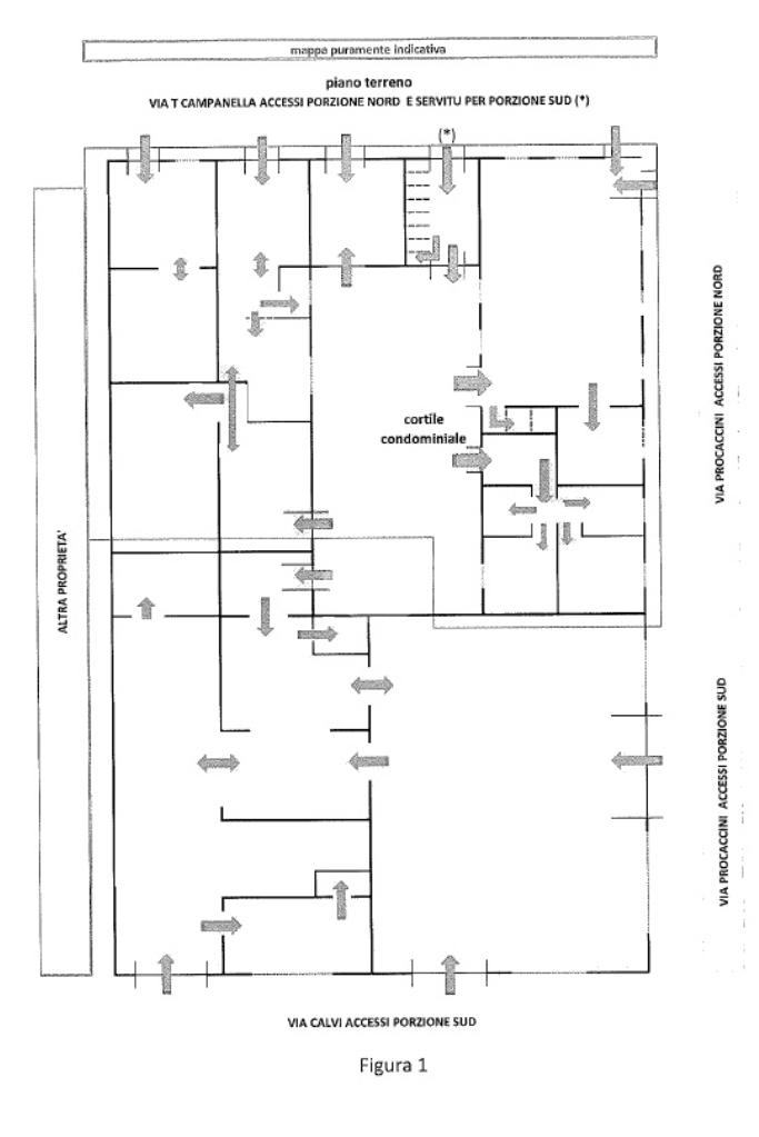
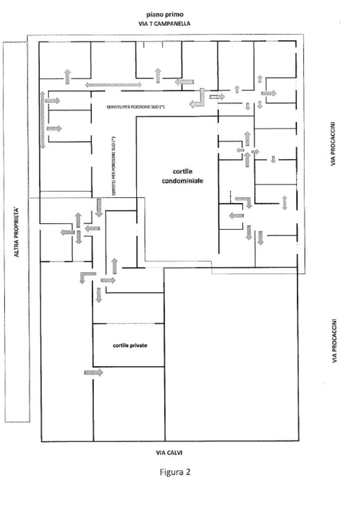
Si propone in vendita una quota di un compendio immobiliare situato in zona Regina Pacis, in una posizione strategica tra Via Campanella, Via Calvi e Via Procaccini, in un'area storicamente conosciuta come ex - Macello.

L’immobile si trova in posizione centralissima, in un contesto residenziale tranquillo ma estremamente ben collegato: la Stazione di Monza dista pochi minuti a piedi, offrendo collegamenti frequenti con Milano Centrale e Porta Garibaldi in meno di 15 minuti. Questo rende l’investimento particolarmente interessante per chi cerca una soluzione comoda per vivere o lavorare in città, ma con la tranquillità di un contesto urbano più raccolto e vivibile.

Caratteristiche principali:

Ubicazione: zona residenziale centrale di Monza, in un contesto tranquillo e ben servito.

Classificazione urbanistica: la zona di ubicazione attualmente rientra nelle aree B2 residenziali edificate di completamento in Classe V

Composizione dell'immobile: la proprietà è attualmente composta da 12 unità di diversa natura, tra cui abitazioni residenziali, depositi, negozi, magazzini e laboratori.

La superficie complessiva dell'area è di 1190 mq, offrendo ampie possibilità di ottimizzazione degli spazi e di sviluppo, anche in altezza.

La vendita riguarda esclusivamente una quota del compendio, offrendo un'interessante opportunità di investimento in una zona in forte espansione e continuo rinnovamento.

Per maggiori dettagli, informazioni tecniche o per organizzare una visita, non esitate a contattarci.

Per informazioni e visite:
Tecnorete Monza Est
Via Cederna 24, Monza
Tel. 039 9635640 Cell. 375 7802844

Mostra tutto

Nelle vicinanze

Trasporto pubblico Trasporto pubblico
Monza
Monza
620 m
Mentana - Beccaria
Mentana - Beccaria
200 m
Trasporto pubblico
210 m
Monza Sobborghi
Monza Sobborghi
730 m
Ricariche auto elettriche Ricariche auto elettriche
U2 Supermercato Monza Via Marsala | ENELX
1,5 Km
Penny Market
1,6 Km
Eurospin Monza Stucchi
2,2 Km
BECHARGE Centro Commerciale Bennet - Brugherio
2,7 Km
Concessionario Nissan Renord
2,7 Km
Scuole Scuole
Essence Academy
330 m
Scuola Secondaria di Primo Grado Statale Bellani
330 m
Isabel Vegas Academy
400 m
Centro Studi Voltaire
650 m
Scuola Primaria Michelangelo Buonarroti
650 m
Farmacia Farmacia
Farmacia Basaglia
250 m
Farmacia Americana
270 m
Parafarmacia Tutto Salute
630 m
Parafarmacia Italiana
720 m
Farmacia del Sole
740 m
Ospedali Ospedali
Istituti Clinici Zucchi
1,4 Km
Policlinico di Monza
1,5 Km
Supermercati Supermercati
TuoDì
310 m
Esselunga Monza Via Buonarroti
350 m
EuroSpin
630 m
Il Gigante
690 m
Supermercati U2
810 m
Negozi Negozi
Okeoghene
210 m
Stock House
540 m
La Bottega del Gusto
550 m
Pane e Amore
560 m
to Market
630 m
Bar Bar
Liquors
830 m
Qualunquemente
900 m
Turnè
910 m
Joist
910 m
Uain
910 m
Ristoranti Ristoranti
Trattoria Canon d'Oro
20 m
Trattoria della Patata
40 m
Mamo's
150 m
La Lampara
210 m
La Viestana
230 m
Mostra tutto

Caratteristiche

Rif.:
61100754
Piano:
Su più livelli di 1
Totale piani:
1
Arredamento:
Assente
Condizionamento:
Assente
Ascensore:
No
Mostra tutto
Prezzo Prezzo
€ 900.000
Rata mutuo Rata mutuo
€ 4.272 / mese
Proponi il tuo prezzoProponi il tuo prezzo

Altre caratteristiche

Classe Energetica

G
G
G
G
G
G
G
G
G
EP globale non rinnovabile:
174.00 kW h/m² anno
EP globale rinnovabile:
174.00 kW h/m² anno
EP invernale del fabbricato:
EP estiva del fabbricato:
Anno di costruzione:
1950
Riscaldamento:
Autonomo
Tipo impianto:
A radiatori
Tipo alimentazione:
Metano

Ti interessa visionare l'immobile?

Fissa un appuntamento  Fissa un appuntamento

Richiedi informazioni

Clicca su Leggi per aprire l'informativa
* Questi campi sono obbligatori

Calcola il tuo mutuo

Semplice e senza impegno
Anticipo

( % )
Mutuo

( % )

pochi semplici passi

inserisci i tuoi dati
Questionario completato
Grazie per aver richiesto un appuntamento senza impegno con un nostro Consulente del Credito e Assicurativo.

Hai inserito correttamente tutti i dati necessari e a breve riceverai una e-mail con un link da convalidare per inviare i tuoi dati.
Affiliato
Studio Cederna Srl
Via Cederna, 24 20900 Monza (MB)

Il nostro staff


  • Milena Cignoni
    Collaboratrice

  • Alex Andrea Gualtieri
    Collaboratore

  • Simone Sala
    Collaboratore

  • Maria Teresa Visci
    Coordinatrice

  • Daniele Cosentino
    Affiliato
Via Cederna, 24 20900 Monza (MB)
Zona: Monza Est
Mostra su mappa
Orari: Lunedi al Venerdi 9.00-13.00/15.00-20.00 Sabato 9.00-12.30/14.30-18.00
Affiliato
Studio Cederna Srl
Via Cederna, 24 20900 Monza (MB)

2026 Tecnocasa Franchising S.p.A. - P. IVA 08365160152 - Via Monte Bianco 60/A 20089 Rozzano (MI). Ogni agenzia ha un proprio titolare ed è autonoma. Privacy policy | Policy utilizzo | Cookie policy