Quadrilocale in vendita

Monza, Via Lorenzo Perosi - Parco
€ 540.000
4 locali 4 locali
131 Mq 131 Mq
2 bagni 2 bagni

Quadrilocale in vendita

Monza, Via Lorenzo Perosi - Parco

Descrizione annuncio

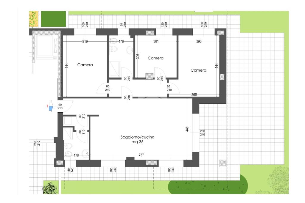
APPARTAMENTO N. 1

Nei pressi della zona Parco a Monza, presentiamo la nuova 'RESIDENZA DEL TALINO'.

Si tratta di una nuova costruzione di sole 9 unità abitative, divise tra trilocali e quadrilocali, che sorge in una delle zone più richieste di Monza, la cui consegna è prevista per Dicembre 2026.

L'Appartamento N. 1 è un quadrilocale con tripla esposizione situato al piano terra dell'edificio e vanta di un ampio giardino.

Entrando nella soluzione si ha accesso all'ampia ed elegante zona giorno con cucina angolare a vista e accesso diretto al porticato di circa 14mq e giardino privato di circa 342mq che abbraccia i tre lati della casa tramite una grande vetrata scorrevole che permette alla luce naturale di illuminare l'appartamento. La zona notte è ben distribuita e composta da tre camere da letto di ampie dimensioni, di cui la cameretta può essere utilizzata anche come studio o stanza degli ospiti. Concludono due servizi di pregio che seguono l'eleganza della palazzina e dell'appartamento.

Tutto l’appartamento è collegato direttamente al giardino privato grazie alla tripla esposizione.

E' possibile la personalizzazzione degli interni tramite capitolato di ampia scelta, di pregio e curato nei minimi dettagli.

Ogni appartamento della palazzina è dotato di tutte le tecnologie e tutti i comfort per renderlo perfetto: porta blindata, sistema di allarme, riscaldamento a pavimento con termostato a gestione autonoma, predisposizione di impianto di ventilazione meccanica controllata, predisposizione condizionamento e deumidificazione, pannelli fotovoltaici per la produzione di energia elettrica.

Tutte gli appartamenti sono inoltre dotati di serramenti certificati per il risparmio energetico con grandi vetrate scorrevoli, tapparelle elettriche e zanzariere.

L'immobile, una volta terminato, sarà in classe A3.

Andranno a completare ogni soluzione la possibilità di un box singolo, doppio in larghezza o doppio in lunghezza con basculante elettrica, oltre a cantine pertinenziali.

La zona è una delle più richieste di Monza, grazie alla sua vicinanza alla Villa Reale e a tutti i servizi di prima necessità, nonostante sia tranquilla e residenziale.

Se pensi sia la soluzione che stai cercando non esitare a contattarci:

Tecnorete Monza Est
Via Cederna 24, Monza
Tel. 039 9635640 Cell. 375 7802844

Mostra tutto

Nelle vicinanze

Trasporto pubblico Trasporto pubblico
Lissone-Muggiò
Lissone-Muggiò
1,9 Km
Monza
Monza
2,5 Km
Via Boito - Via Perosi (Cazzaniga)
Via Boito - Via Perosi (Cazzaniga)
130 m
Via Boito - Via Paganini (Cazzaniga)
Via Boito - Via Paganini (Cazzaniga)
190 m
Monza Sobborghi
Monza Sobborghi
2,8 Km
Ricariche auto elettriche Ricariche auto elettriche
Lidl Lissone
860 m
Sporting Club Monza
1,2 Km
U2 Supermercato Monza Via Marsala | ENELX
2,4 Km
Scuole Scuole
Scuola Primaria Bachelet
250 m
Scuola Secondaria di Primo Grado Elisa Sala
400 m
Scuola Primaria Salvo D'Acquisto
420 m
Università degli Studi di Milano Bicocca - Facoltà di Medicina e Chirurgia
970 m
Collegio Villoresi San Giuseppe
980 m
Farmacia Farmacia
Farmacia Comunale n. 2
230 m
Comunale n. 10
850 m
Farmacia Zecca
860 m
Farmacia Rondò
860 m
Comunale del Parco
1,3 Km
Ospedali Ospedali
Ospedale San Gerardo
760 m
Istituti Clinici Zucchi
1,7 Km
Ospedale di Lissone
3,0 Km
Supermercati Supermercati
Carrefour Market
450 m
Iper
760 m
Lidl
810 m
Bennet
810 m
Sigma
970 m
Negozi Negozi
NaturaSì
440 m
Carrefour Express
650 m
Golden Point
800 m
Tezenis
810 m
Terranova
820 m
Bar Bar
Wine Bar San Biagio
1,2 Km
Bar
1,3 Km
Goodfellas
1,4 Km
Velvet
1,4 Km
zero3nove
1,7 Km
Ristoranti Ristoranti
O'Vesuvio
150 m
Il Giardino di Giada
230 m
Atmosfera
470 m
Ristoranti
520 m
La Villetta
630 m
Mostra tutto

Caratteristiche

Rif.:
61135289
Piano:
Terra di 4 con ascensore
Totale piani:
4
Camere da letto:
3
Arredamento:
Assente
Condizionamento:
Autonomo
Mostra tutto
Prezzo Prezzo
€ 540.000
Rata mutuo Rata mutuo
€ 2.544 / mese
Proponi il tuo prezzoProponi il tuo prezzo

Classe Energetica

A3
A3
A3
A3
A3
A3
A3
A3
A3
EP globale non rinnovabile:
3.51 kW h/m² anno
EP globale rinnovabile:
3.51 kW h/m² anno
EP invernale del fabbricato:
EP estiva del fabbricato:
Anno di costruzione:
2025
Riscaldamento:
Autonomo
Tipo impianto:
A pavimento
Tipo alimentazione:
Metano

Ti interessa visionare l'immobile?

Fissa un appuntamento  Fissa un appuntamento

Richiedi informazioni

Clicca su Leggi per aprire l'informativa
* Questi campi sono obbligatori

Calcola il tuo mutuo

Semplice e senza impegno
Anticipo

( % )
Mutuo

( % )

pochi semplici passi

inserisci i tuoi dati
Questionario completato
Grazie per aver richiesto un appuntamento senza impegno con un nostro Consulente del Credito e Assicurativo.

Hai inserito correttamente tutti i dati necessari e a breve riceverai una e-mail con un link da convalidare per inviare i tuoi dati.
Affiliato
Studio Cederna Srl
Via Cederna, 24 20900 Monza (MB)

Il nostro staff


  • Milena Cignoni
    Collaboratrice

  • Alex Andrea Gualtieri
    Collaboratore

  • Simone Sala
    Collaboratore

  • Maria Teresa Visci
    Coordinatrice

  • Daniele Cosentino
    Affiliato
Via Cederna, 24 20900 Monza (MB)
Zona: Monza Est
Mostra su mappa
Orari: Lunedi al Venerdi 9.00-13.00/15.00-20.00 Sabato 9.00-12.30/14.30-18.00
Affiliato
Studio Cederna Srl
Via Cederna, 24 20900 Monza (MB)

2026 Tecnocasa Franchising S.p.A. - P. IVA 08365160152 - Via Monte Bianco 60/A 20089 Rozzano (MI). Ogni agenzia ha un proprio titolare ed è autonoma. Privacy policy | Policy utilizzo | Cookie policy