Quadrilocale in vendita

Monza, Via Mentana - Monza Est
€ 430.000
4 locali 4 locali
163 Mq 163 Mq
2 bagni 2 bagni

Quadrilocale in vendita

Monza, Via Mentana - Monza Est

Descrizione annuncio

Nel cuore di Monza Est, proponiamo un ampio appartamento in vendita, ideale per chi cerca spazio, comfort e modernità.

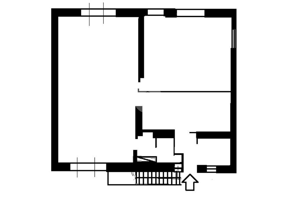
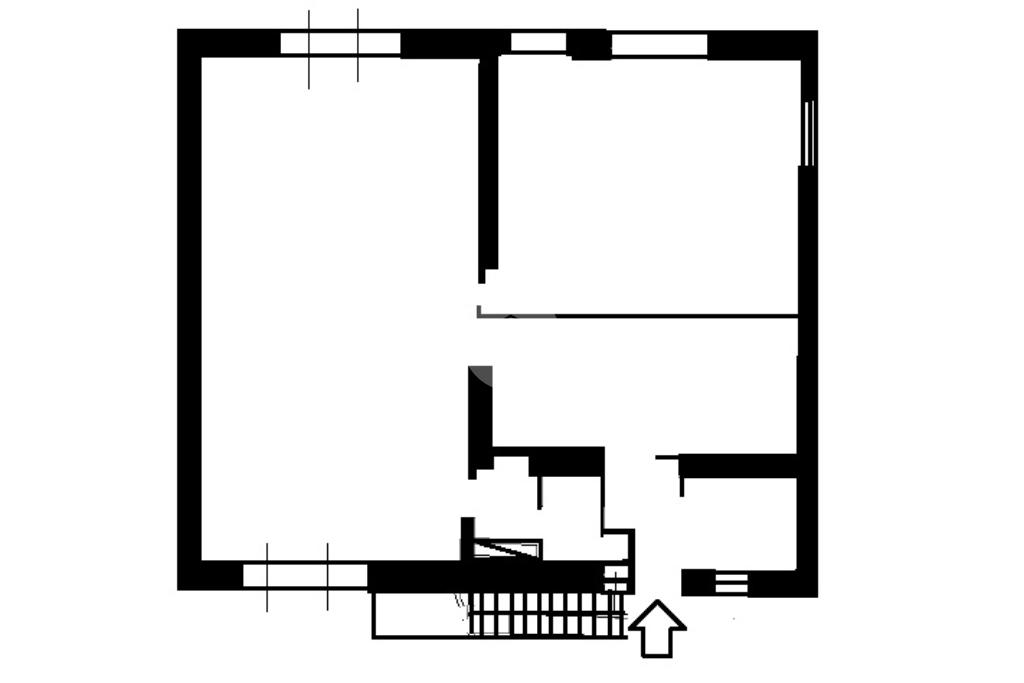
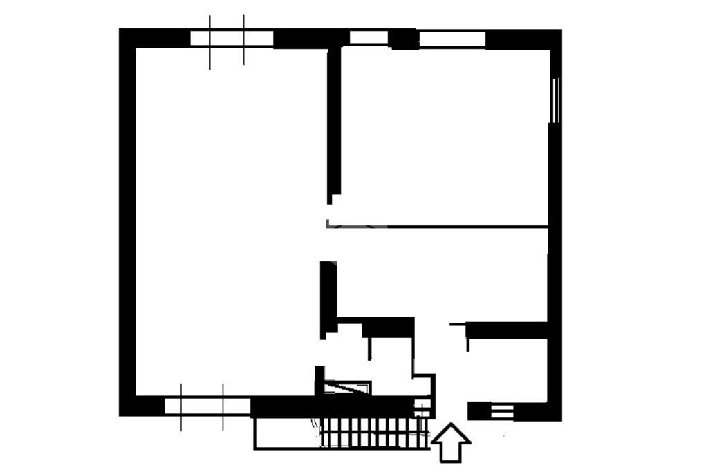
Situato al piano terra, l'immobile si estende su un'ampia superfice che permette la scelta di distribuzione degli spazi a seconda delle proprie esigenze.

La proprietà comprende un ampio soggiorno doppio e luminoso grazie alla sua doppia esposizione, mentre la cucina rimane attualmente separata. La zona notte permette di ricavare un trilocale o un quadrilocale scegliendo se mantenere due camere da letto o in alternativa creare una terza stanza aggiuntiva da adibire come terza camera da letto, sala hobby, cabina armadio o studio.

L'appartamento è dotato di aria condizionata e sistema di allarme, assicurando comfort e sicurezza costante, oltre a porta blindata, infissi in doppio vetro PVC, pannelli solari e impianti rifatti.

Recentemente ristrutturato, l'immobile unisce un fascino classico con finiture moderne di qualità.

Completa la proprietà un posto auto riservato all'interno del contesto, un vantaggio significativo in una zona residenziale.

Questa soluzione abitativa rappresenta un'opportunità unica sia per famiglie che desiderano personalizzare lo spazio per esaudire le proprie esigenze sia per investitori grazie al potenziale dell'immobile e la sua ottima posizione.

Per informazioni e visite:
Tecnorete Monza Est
Via Cederna 24, Monza
Tel. 039 9635640 Cell. 375 7802844

Mostra tutto

Nelle vicinanze

Trasporto pubblico Trasporto pubblico
Monza
Monza
280 m
Via Turati (Monza FS)
Via Turati (Monza FS)
140 m
Trasporto pubblico
220 m
Monza Sobborghi
Monza Sobborghi
780 m
Ricariche auto elettriche Ricariche auto elettriche
U2 Supermercato Monza Via Marsala | ENELX
1,3 Km
Penny Market
1,5 Km
Eurospin Monza Stucchi
2,5 Km
Sporting Club Monza
2,7 Km
Iper Monza
2,9 Km
Scuole Scuole
Isabel Vegas Academy
50 m
Essence Academy
50 m
Centro Studi Voltaire
340 m
Accademia PBS
360 m
Scuola Secondaria di Primo Grado Teresa Confalonieri
520 m
Farmacia Farmacia
Parafarmacia Italiana
370 m
Farmacia del Corso
390 m
Farmacia del Sole
410 m
Farmacia Americana
460 m
Parafarmacia Farmaflor
590 m
Ospedali Ospedali
Istituti Clinici Zucchi
1,1 Km
Policlinico di Monza
1,6 Km
Supermercati Supermercati
Supermercati U2
470 m
Esselunga Monza Via Buonarroti
540 m
Il Gigante
560 m
EuroSpin
650 m
TuoDì
660 m
Negozi Negozi
Stock House
220 m
to Market
290 m
Okeoghene
340 m
Biffi
370 m
Il Forno di Nonna Palllina
380 m
Bar Bar
Liquors
590 m
Uain
630 m
Cantina dei Sapori
720 m
Dive
740 m
Garibaldi Cafè
800 m
Ristoranti Ristoranti
La Cantina
20 m
Izumi
150 m
La Viestana
170 m
La Lampara
230 m
Mamo's
240 m
Mostra tutto

Caratteristiche

Rif.:
61169188
Piano:
Terra di 1
Totale piani:
1
Posti auto:
1
Camere da letto:
3
Arredamento:
Assente
Mostra tutto
Prezzo Prezzo
€ 430.000
Rata mutuo Rata mutuo
€ 2.041 / mese
Spese annue Spese annue
€ 700
Proponi il tuo prezzoProponi il tuo prezzo

Classe Energetica

C
C
C
C
C
C
C
C
C
EP globale non rinnovabile:
92.83 kW h/m² anno
EP globale rinnovabile:
92.83 kW h/m² anno
EP invernale del fabbricato:
EP estiva del fabbricato:
Anno di costruzione:
1980
Riscaldamento:
Autonomo
Tipo impianto:
A pavimento
Tipo alimentazione:
Metano

Ti interessa visionare l'immobile?

Fissa un appuntamento  Fissa un appuntamento

Richiedi informazioni

Clicca su Leggi per aprire l'informativa
* Questi campi sono obbligatori

Calcola il tuo mutuo

Semplice e senza impegno
Anticipo

( % )
Mutuo

( % )

pochi semplici passi

inserisci i tuoi dati
Questionario completato
Grazie per aver richiesto un appuntamento senza impegno con un nostro Consulente del Credito e Assicurativo.

Hai inserito correttamente tutti i dati necessari e a breve riceverai una e-mail con un link da convalidare per inviare i tuoi dati.
Affiliato
Studio Cederna Srl
Via Cederna, 24 20900 Monza (MB)

Il nostro staff


  • Milena Cignoni
    Collaboratrice

  • Alex Andrea Gualtieri
    Collaboratore

  • Simone Sala
    Collaboratore

  • Maria Teresa Visci
    Coordinatrice

  • Daniele Cosentino
    Affiliato
Via Cederna, 24 20900 Monza (MB)
Zona: Monza Est
Mostra su mappa
Orari: Lunedi al Venerdi 9.00-13.00/15.00-20.00 Sabato 9.00-12.30/14.30-18.00
Affiliato
Studio Cederna Srl
Via Cederna, 24 20900 Monza (MB)

2026 Tecnocasa Franchising S.p.A. - P. IVA 08365160152 - Via Monte Bianco 60/A 20089 Rozzano (MI). Ogni agenzia ha un proprio titolare ed è autonoma. Privacy policy | Policy utilizzo | Cookie policy