Negozio in vendita

Monza, Via Michelangelo Buonarroti - Monza Est
€ 98.000
2 locali 2 locali
70 Mq 70 Mq
1 bagno 1 bagno

Negozio in vendita

Monza, Via Michelangelo Buonarroti - Monza Est

Descrizione annuncio

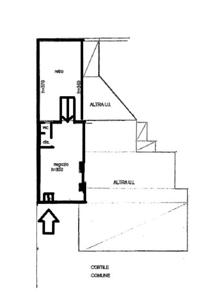
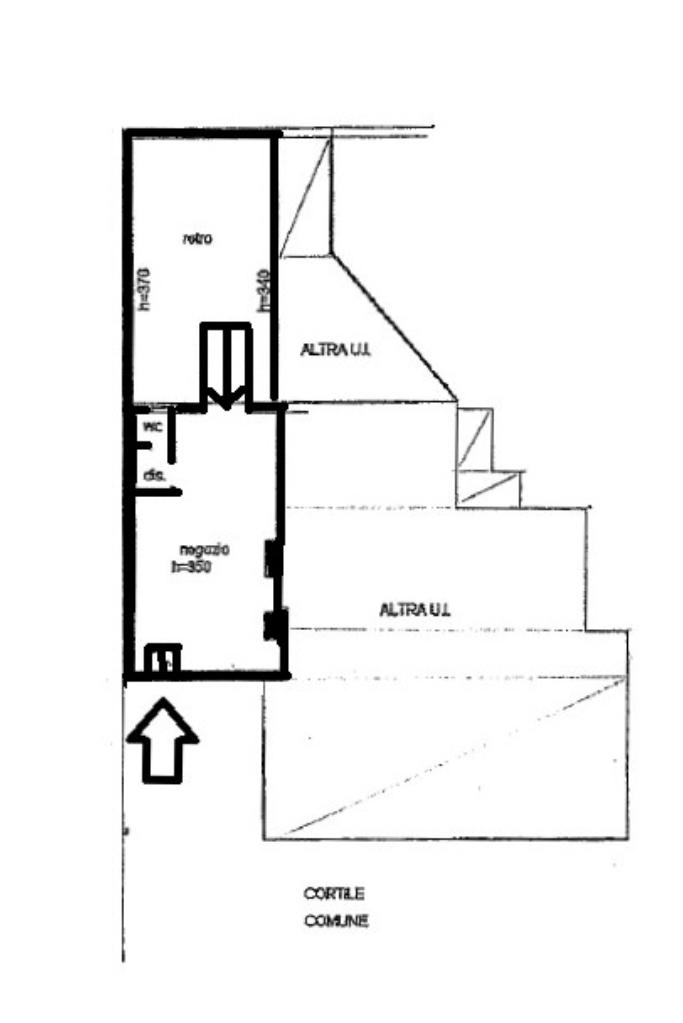
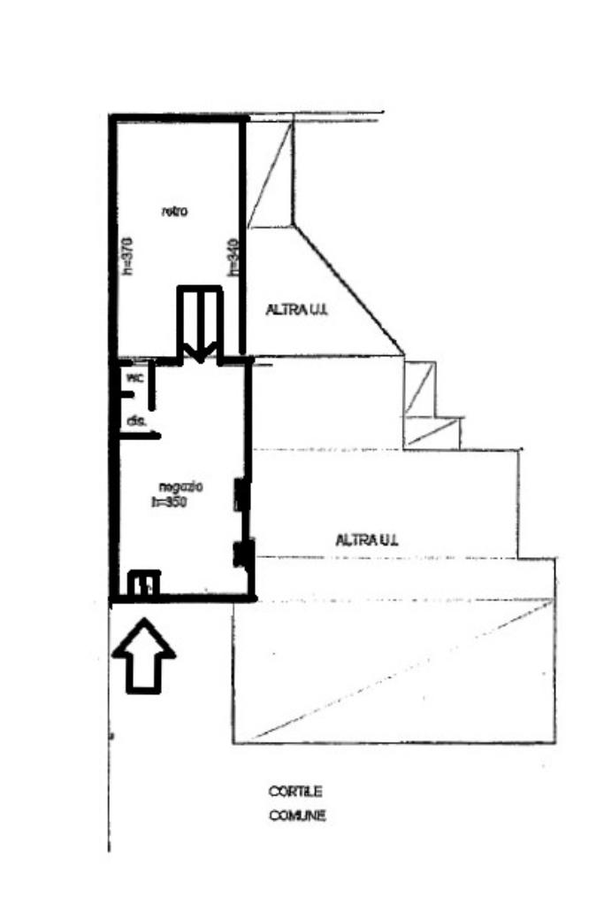
Nel cuore di Monza Est, in zona Buonarroti a due passi dalla stazione di Monza Sobborghi, proponiamo in vendita negozio situato al piano terra su strada.

L'immobile, ristrutturato internamente nel 2009, offre locali ben divisi tra negozio e retro che si prestano a diverse attività commerciali; ottima soluzione per attività di ristoro.

La disposizione interna è funzionale, con spazi che possono essere facilmente adattati alle esigenze specifiche del tuo business, con una luminosa vetrina su strada ed una pratica area esterna coperta ad uso esclusivo.

Il negozio è dotato di un bagno adatto anche a persone disabili, garantendo comfort e praticità per te e i tuoi clienti.

La posizione strategica in una zona vivace di Monza Est assicura una buona visibilità e un flusso costante di passanti, ideale per chi desidera avviare o espandere la propria attività.

La struttura solida rappresenta un'opportunità interessante per chi cerca un investimento in una delle aree più dinamiche della città.

Per informazioni e visite:
Tecnorete Monza Est
Via Cederna 24, Monza
Tel. 039 9635640 Cell. 375 7802844

Mostra tutto

Nelle vicinanze

Trasporto pubblico Trasporto pubblico
Monza
Monza
750 m
Monza Via Borsa
Monza Via Borsa
130 m
Monza Buonarroti 32
Monza Buonarroti 32
250 m
Monza Sobborghi
Monza Sobborghi
250 m
Ricariche auto elettriche Ricariche auto elettriche
U2 Supermercato Monza Via Marsala | ENELX
1,8 Km
Penny Market
2,0 Km
Eurospin Monza Stucchi
2,1 Km
Iper Monza
2,4 Km
Concessionario Nissan Renord
2,5 Km
Scuole Scuole
Scuola Secondaria di Primo Grado Statale Bellani
450 m
Essence Academy
480 m
Istituto Scolastico Preziosissimo Sangue
500 m
Isabel Vegas Academy
540 m
Scuola Secondaria di Primo Grado Teresa Confalonieri
600 m
Farmacia Farmacia
Farmacia Americana
280 m
Parafarmacia Farmaflor
340 m
Farmacia Villa
450 m
Farmacia Robbiati
460 m
Farmacia Casanova
530 m
Ospedali Ospedali
Istituti Clinici Zucchi
1,0 Km
Policlinico di Monza
1,1 Km
Ospedale San Gerardo
3,0 Km
Supermercati Supermercati
EuroSpin
120 m
Esselunga Monza Via Buonarroti
260 m
Il Gigante
260 m
Carrefour Express
390 m
TuoDì
710 m
Negozi Negozi
La Bottega del Gusto
50 m
Campagna Amica
280 m
Okeoghene
300 m
Legit
360 m
Napapijri
390 m
Bar Bar
Turnè
390 m
Qualunquemente
400 m
Joist
400 m
Papilla Monza
440 m
Miles Cafe
450 m
Ristoranti Ristoranti
Nilo Blu
110 m
Bordeaux
130 m
Ristorante Pizzeria Da Franco
290 m
Osteria Visconti
300 m
Amadeus
310 m
Mostra tutto

Caratteristiche

Rif.:
61196287
Piano:
Terra di 6
Totale piani:
6
Condizionamento:
Assente
Riscaldamento:
Centralizzato
Libero:
Mostra tutto
Prezzo Prezzo
€ 98.000
Rata mutuo Rata mutuo
€ 465 / mese
Spese annue Spese annue
€ 1.440
Proponi il tuo prezzoProponi il tuo prezzo

Altre caratteristiche

Descrizione dei locali
Bagno Cieco

Classe Energetica

G
G
G
G
G
G
G
G
G
EP globale non rinnovabile:
174.00 kW h/m² anno
EP globale rinnovabile:
174.00 kW h/m² anno
EP invernale del fabbricato:
EP estiva del fabbricato:
Anno di costruzione:
1970
Riscaldamento:
Centralizzato
Tipo impianto:
A radiatori
Tipo alimentazione:
Metano

Ti interessa visionare l'immobile?

Fissa un appuntamento  Fissa un appuntamento

Richiedi informazioni

Clicca su Leggi per aprire l'informativa
* Questi campi sono obbligatori

Calcola il tuo mutuo

Semplice e senza impegno
Anticipo

( % )
Mutuo

( % )

pochi semplici passi

inserisci i tuoi dati
Questionario completato
Grazie per aver richiesto un appuntamento senza impegno con un nostro Consulente del Credito e Assicurativo.

Hai inserito correttamente tutti i dati necessari e a breve riceverai una e-mail con un link da convalidare per inviare i tuoi dati.
Affiliato
Studio Cederna Srl
Via Cederna, 24 20900 Monza (MB)

Il nostro staff


  • Milena Cignoni
    Collaboratrice

  • Alex Andrea Gualtieri
    Collaboratore

  • Simone Sala
    Collaboratore

  • Maria Teresa Visci
    Coordinatrice

  • Daniele Cosentino
    Affiliato
Via Cederna, 24 20900 Monza (MB)
Zona: Monza Est
Mostra su mappa
Orari: Lunedi al Venerdi 9.00-13.00/15.00-20.00 Sabato 9.00-12.30/14.30-18.00
Affiliato
Studio Cederna Srl
Via Cederna, 24 20900 Monza (MB)

2026 Tecnocasa Franchising S.p.A. - P. IVA 08365160152 - Via Monte Bianco 60/A 20089 Rozzano (MI). Ogni agenzia ha un proprio titolare ed è autonoma. Privacy policy | Policy utilizzo | Cookie policy