Ufficio in vendita

Monza, Via Murri - Monza Est
€ 80.000
1 locale 1 locale
83 Mq 83 Mq
1 bagno 1 bagno

Ufficio in vendita

Monza, Via Murri - Monza Est

Descrizione annuncio

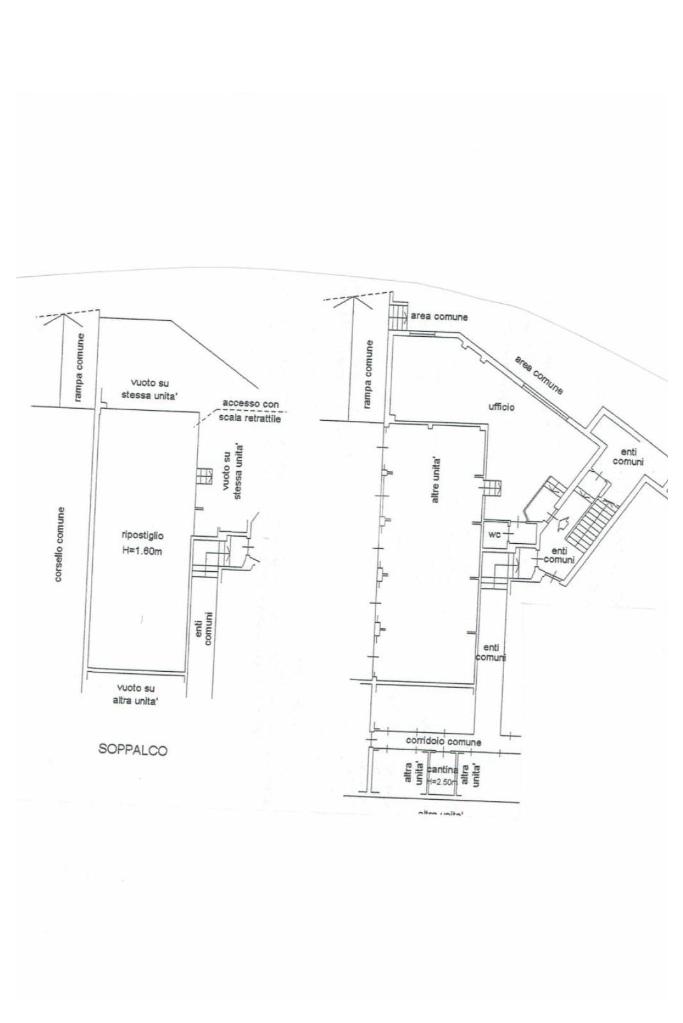
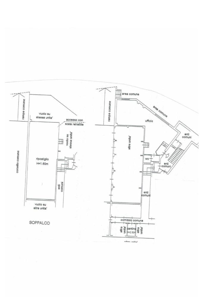
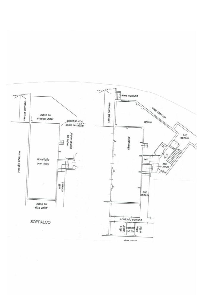
Nel cuore di Monza Est, in zona Sant'Albino, proponiamo ufficio in vendita situato al piano seminterrato di un contesto moderno e tranquillo.

L'immobile offre un ampio locale open space di circa 60mq oltre ad un ampio soppalco di circa 70mq, ideale per adattarsi a diverse esigenze professionali e per avere ulteriore comfort.

Nonostante il piano seminterrato, grazie alle finestre l'ufficio rimane ben illuminato dalla luce naturale.

Completato da un bagno funzionale, l'ufficio garantisce praticità per chi cerca uno spazio lavorativo ben organizzato.

L'edificio è dotato di ascensore dal piano terra, non raggiunge il piano seminterrato.

Un box auto al prezzo di 14.000 euro offre ulteriore comodità per chi necessita di un parcheggio privato.

Situato in una zona tranquilla ma strategica di Monza, l'ufficio rappresenta un'opportunità interessante per professionisti e aziende in cerca di una sede funzionale e ben collegata.

Per informazioni e visite:
Tecnorete Monza Est
Via Cederna 24, Monza
Tel. 039 9635640 Cell. 375 7802844

Mostra tutto

Nelle vicinanze

Trasporto pubblico Trasporto pubblico
Monza
Monza
2,8 Km
Trasporto pubblico
260 m
Z323 Cologno Nord-Vimercate
Z323 Cologno Nord-Vimercate
420 m
Monza Sobborghi
Monza Sobborghi
2,1 Km
Ricariche auto elettriche Ricariche auto elettriche
Eurospin Monza Stucchi
290 m
Concessionario Nissan Renord
990 m
Iper Monza
1,5 Km
BECHARGE Centro Commerciale Bennet - Brugherio
1,8 Km
Eneldrive Esselunga Monza
2,3 Km
Scuole Scuole
Scuola Primaria Alessandro Manzoni
400 m
Scuola Media "Eduardo De Filippo"
410 m
Scuola Elementare "Filippo Corridoni"
650 m
Scuola Secondaria di primo grado Giovanni Pascoli
750 m
Scuola Primaria Iqbal Masih
820 m
Farmacia Farmacia
Farmacia Comunale n. 4
250 m
Farmacia dei Mille
680 m
Farmacia Comunale n° 6
850 m
Farmacia Cederna
1,2 Km
Iper Farma
1,5 Km
Ospedali Ospedali
Policlinico di Monza
1,6 Km
Supermercati Supermercati
EuroSpin
290 m
CRAI
910 m
U2
1,1 Km
Lidl
1,2 Km
IN's Mercato
1,4 Km
Negozi Negozi
Abbigliamento al Bottegon
490 m
Carrefour Express
700 m
Wheelup Monza
1,0 Km
Negozi
1,1 Km
Mario Baldrighi
1,2 Km
Bar Bar
Movida Monza
920 m
Fantasy Dance Line
940 m
Tony e Dany
1,2 Km
The King Bar
1,7 Km
ModY's Bar
1,9 Km
Ristoranti Ristoranti
Road House
260 m
Ristoranti
1,1 Km
O' Vascio
1,2 Km
Yami Sushi
1,3 Km
raul e Tilde
1,5 Km
Mostra tutto

Caratteristiche

Rif.:
61111987
Piano:
-1 di 2 con ascensore (Piano seminterrato)
Box:
1
Condizionamento:
Assente
Ascensore:
Riscaldamento:
Autonomo
Mostra tutto
Prezzo Prezzo
€ 80.000
Prezzo box Prezzo box
€ 14.000
Rata mutuo Rata mutuo
€ 380 / mese
Spese annue Spese annue
€ 1.440
Proponi il tuo prezzoProponi il tuo prezzo

Classe Energetica

E
E
E
E
E
E
E
E
E
EP globale non rinnovabile:
406.30 kW h/m² anno
EP globale rinnovabile:
406.30 kW h/m² anno
EP invernale del fabbricato:
EP estiva del fabbricato:
Anno di costruzione:
1999
Riscaldamento:
Autonomo
Tipo impianto:
A radiatori
Tipo alimentazione:
Metano

Ti interessa visionare l'immobile?

Fissa un appuntamento  Fissa un appuntamento

Richiedi informazioni

Clicca su Leggi per aprire l'informativa
* Questi campi sono obbligatori

Calcola il tuo mutuo

Semplice e senza impegno
Anticipo

( % )
Mutuo

( % )

pochi semplici passi

inserisci i tuoi dati
Questionario completato
Grazie per aver richiesto un appuntamento senza impegno con un nostro Consulente del Credito e Assicurativo.

Hai inserito correttamente tutti i dati necessari e a breve riceverai una e-mail con un link da convalidare per inviare i tuoi dati.
Affiliato
Studio Cederna Srl
Via Cederna, 24 20900 Monza (MB)

Il nostro staff


  • Milena Cignoni
    Collaboratrice

  • Alex Andrea Gualtieri
    Collaboratore

  • Simone Sala
    Collaboratore

  • Maria Teresa Visci
    Coordinatrice

  • Daniele Cosentino
    Affiliato
Via Cederna, 24 20900 Monza (MB)
Zona: Monza Est
Mostra su mappa
Orari: Lunedi al Venerdi 9.00-13.00/15.00-20.00 Sabato 9.00-12.30/14.30-18.00
Affiliato
Studio Cederna Srl
Via Cederna, 24 20900 Monza (MB)

2026 Tecnocasa Franchising S.p.A. - P. IVA 08365160152 - Via Monte Bianco 60/A 20089 Rozzano (MI). Ogni agenzia ha un proprio titolare ed è autonoma. Privacy policy | Policy utilizzo | Cookie policy